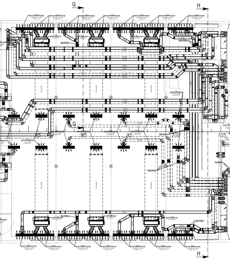
Ventilation / Emerald Azzurra We produce schematic and 3D models for ventilation system. Schematic of ductwork in loungeModel of ducts and fancoils in loungeInstallation of ducts and fancoils in loungeModel of AHUAHU installedModel of ducts on top deckModel of ducts on top deckExhaust grill on top deck