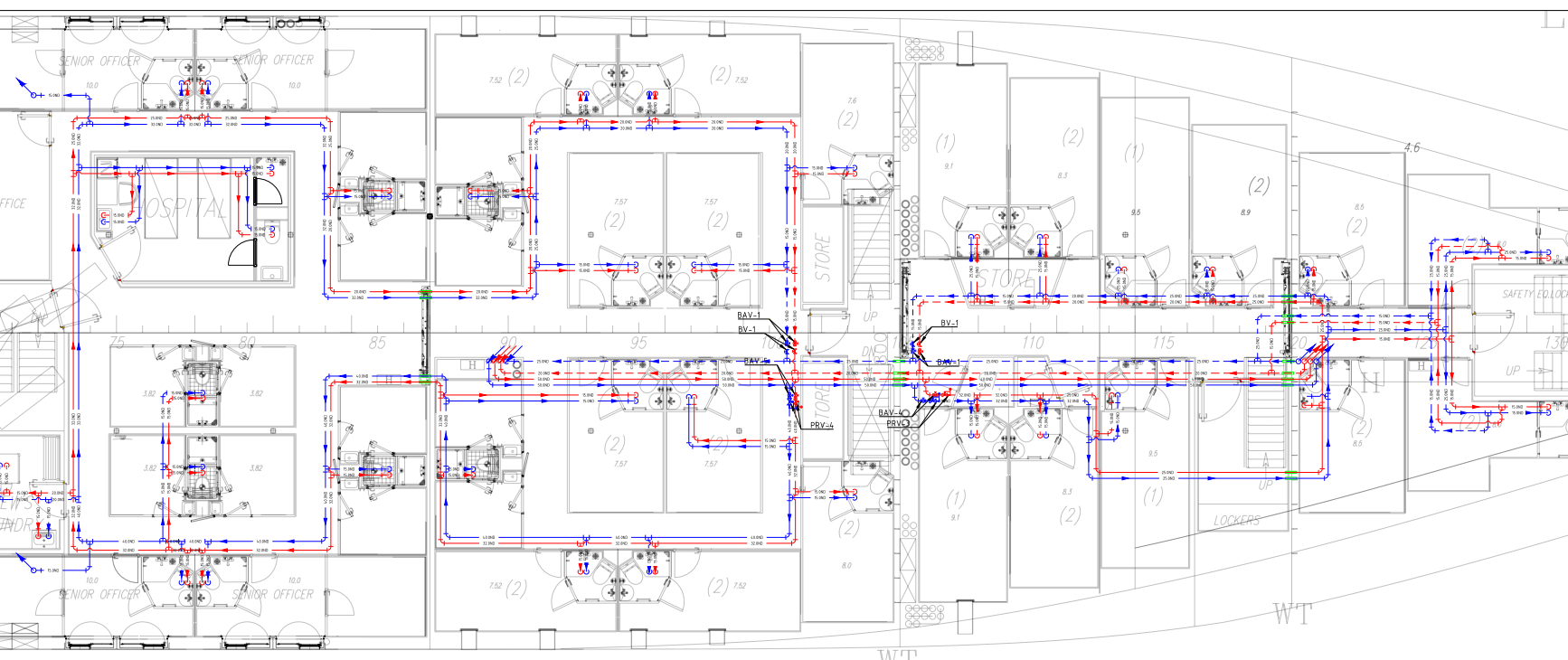
Potable water / Emerald Azzurra We produce schematic and calculate capacities for potable water systems. Pottable water schematicPottable water pipes